
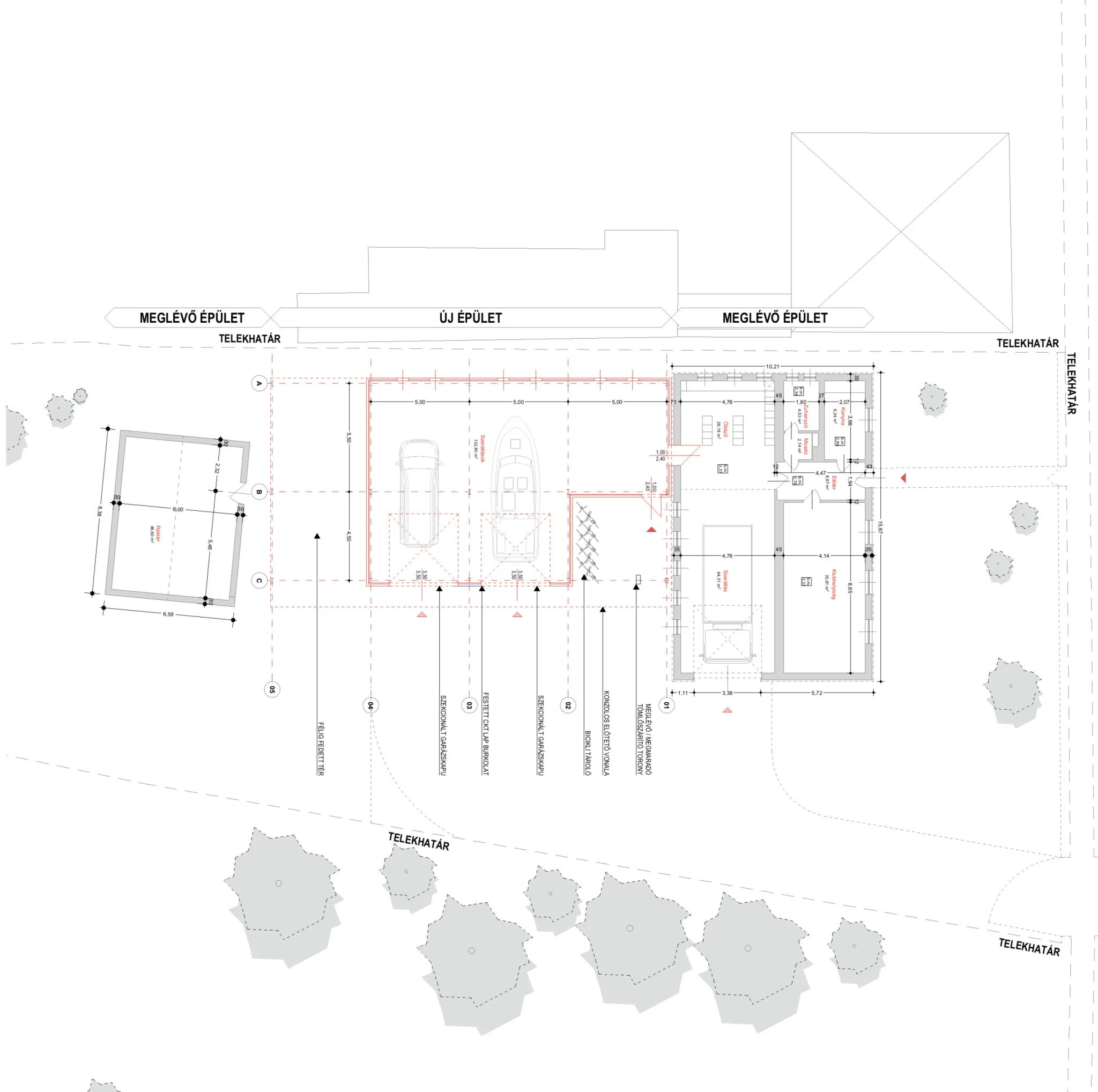
Garage extension for a Voluntary Fire Association.
Fire department garage building The Hédervár Voluntary Fire Association won a new fire truck and a motorboat in a tender. They did not fit in their existing building, so they needed two garages for maintenance. I designed such a compact garage building, it combines the various functions into a repetitive structure.
Year: 2020
Location: Hédervár, Hungary
Architects: Péter Hódi + ZIP Architects (Győr)





